ROOM MEASURING GUIDE
Follow these simple steps to enable us to design your kitchen and please be as accurate as possible.
What you will need:
- Measuring tape
- Graph paper
- Ruler
- Pencil and rubber
- Patience – take your time!
Sketch your room layout and measure your room in cm or mm.
First draw the general room shape – Start in one corner and work around clockwise showing the total overall length of each wall.
Tip: Looking at the ceiling can often assist in understand the shape without obstructions. Getting someone to help hold the tape measure or write the dimensions can be very helpful.
Next mark in the location of any windows and doors, and which way they open on your plan. Measure the location from the corner to the outside of the window reveal or architrave, and then measure the overall width. Also make a note of the windowsill height and the overall window height.
Tip: Walls and corners aren’t always perfectly level or square, so check your measurements from both sides of the openings. Also note or draw outside walls thicker so we can easily identify them.
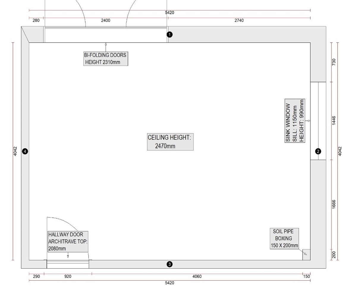
You should now have drawn a plan something like this:

Now make a careful note of other important features
On our example Plan we have numbered each wall (1-4 above) so now draw an Elevation of each kitchen wall, and include any items such as:
- Any boilers including the casing Width x Height x Depth and it’s position from the nearest corner, and it’s height from the floor.
- Extractor fans. Commonly any ducting is routed through an outside wall and they will have a grill or louvered cover. If you can see this please note its location.
- Locate and note the incoming water main position, often this will be a blue pipe coming up through the floor.
- Also try and see if you can identify where the kitchen sink waste runs. This could be through a wall to a drain outside, down into a drain in the floor, or it may run along the wall behind the cabinets to a vertical pipe called the soil and vent pipe.
- Knowing where key electrical locations are also extremely helpful including consumer units, the oven supply, boiler controls, etc
- Indicate where any gas connections are located, and these are often hidden inside of cupboards next to or underneath the hob.
Tip: Take plenty of photos of your room/kitchen, and especially any items that you’re unsure about.
Once complete, check carefully and then email to us.
Disclaimer – We will design to the sizes and information provided and you are responsible for the accuracy of this information.
Elevation Walls 1 + 2

